Elements Resort Africa
Site: Kolwezi, Democratic Republic of Congo, Africa
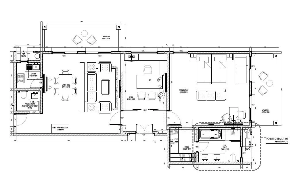
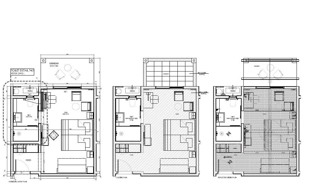
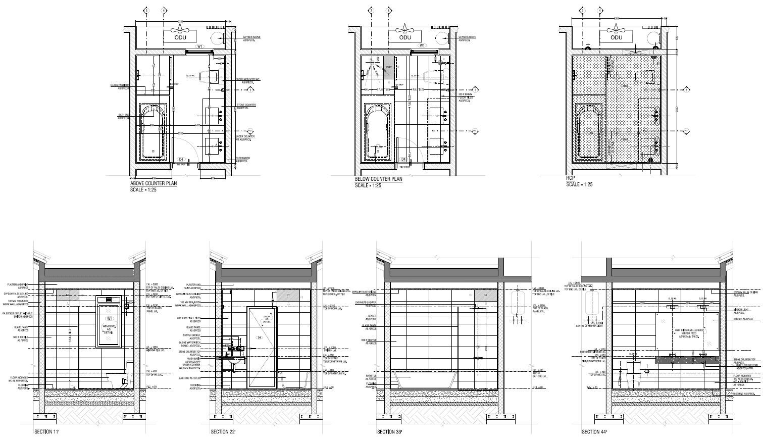
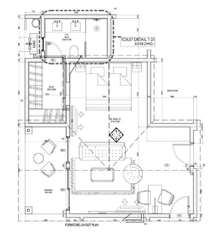
The project was undertaken for Arcop architectural firm in India where I worked for an year. It is ideally located in Kolwezi, the Elements Resort stands amid landscaped gardens. The resort at present is under construction; offering 50 spacious standard rooms, executive rooms and presidential suites. The resort also offers two restaurants , a welcoming lounge and a v i b rant pool deck , gymnasium, banquet halls with lawns.
Arcops Pvt Ltd, India- Internship Project, 2018-2019 | www.arcop.co.in